




CBS Imobiliare va aduce in atentie aceasta oferta de duplex situat in Floresti (Cluj) zona Tineretului.
Duplexul se preda la stadiul de semifinisat fiind in lucru inca, cu termen de finaliazare/ predare in iulie 2026.
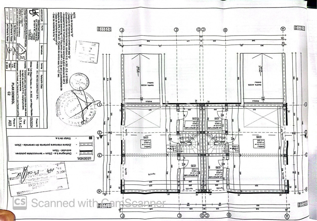
Suprafata utila e de 160 mp, teren de 200 mp, garaj, parcari exterioare, spatiu de depozitare, living cu bucatarie
open-space, 3 dormitoare, 2 bai si dressing, balcon, pod pretabil pt depozitare.
Casele dispun de asemenea si de incalzire in pardoseala, geamuri tripan, tigla ceramica, izolatie de 15 cm.
Pt a va furniza mai multe detalii nu ezitati sa ne contactati pt a prezenta un imobil potrivit cautarilor dvs!