



CBS IMOBILIARE ofera spre vanzare Casa in Chinteni.
Pretul este de 195.000+ TVA, iar suprafata este de 150 mp + 50 mp terase.
700 mp teren la fiecare casa cu tot cu amprenta casei
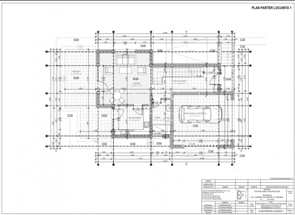
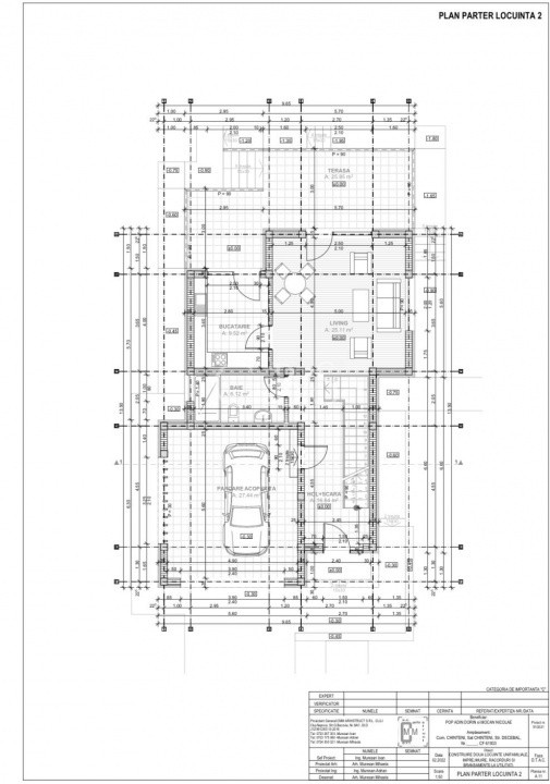
Ca si compartimentare este structurata astfel: Living , bucatarie separata, garaj cu posibilitatea de a se transforma in camera și o baie, la etaj, dormitor cu dressing și baie matrimonială + încă 2 dormitoare și o baie.
Încălzire în pardoseală, geamuri tripan, țiglă ceramică .
Termen finalizare anul viitor aprilie 2026.
700 mp teren oferent casei cu tot cu amprenta.
Va asteptam la vizionare!